Генплан
В продаже 1 квартира
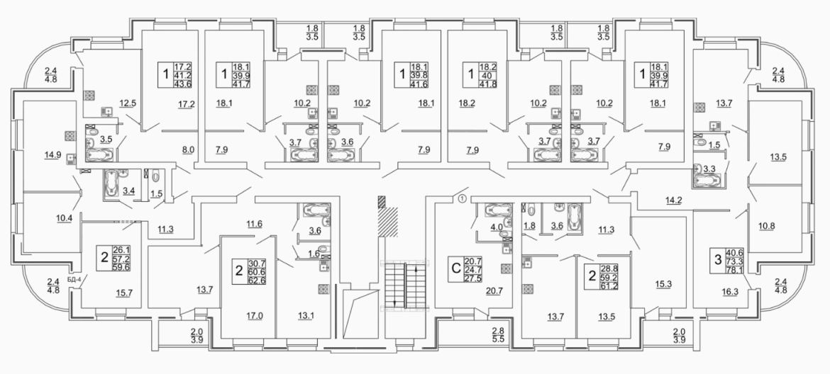
Дом 1